Air-termination Mast for Sub-roof Installation of the HVI Conductor

For top mount on roof rafter bracketsOptically optimised routing of the HVI Conductor inside the supporting tube. The HVI Conductor is led through the mast support of the roof rafter bracket and installed in the region of the counter/roof battens. Advantages:
  • Sub-roof installation – optically indiscernible
  • Top mount with only one visible tube
  • No mechanical load, e.g. snow
Minimum order length 6 m. Conductor length to be indicated when ordering (in steps of 0.5 m).The conductor cannot be returned as it is made to order.

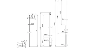
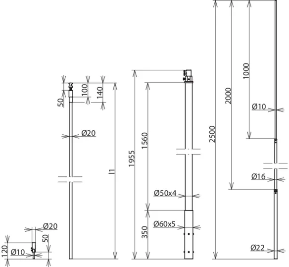
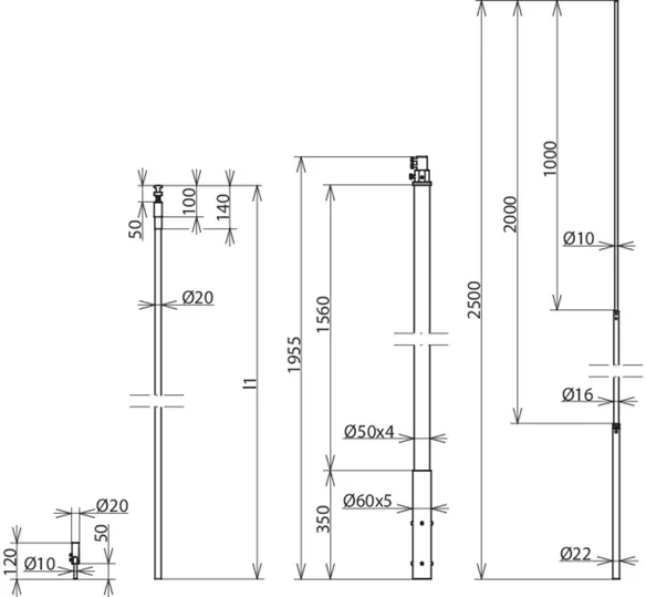
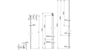
HVI Conductor in supporting tube with air-termination rod

1 Product

Part No. 819247 HVI 20 M L6M SR1955 FS2500 DSH GFK AL

GTIN 4013364260900, Customs tariff No. (EU): 85389099, Gross weight: 7.10 kg, PU: 1.00 pc(s)


Images

Additional information

Air-termination mast for sub-roof installation of the HVI Conductor
Air-termination mast with HVI Conductor and air-termination rod for
sub-roof installation for installation on top of the roof rafter bracket
The HVI Conductor is routed through the mast support of the roof rafter bracket
and installed in the counter batten / roof batten area.
The supporting tubes are dimensioned to
Eurocode 1 (DIN EN 1991-1-4 + DIN EN 1991-1-4/NA).
DEHNcon-H HVI Conductor in the supporting tube, with special internal
sealing end and air-termination rod Ø22/16/10 mm, 2,500 mm long
Material of supporting tube: GRP / Al
Length of supporting tube: 1955 mm
Colour of conductor: black ●
Material of conductor: Cu
Equivalent separation distance s (in air): ≤ 75 cm
Minimum order length: 6 m
Max. gust wind speed: 140 km/h
Standard: DIN IEC/TS 62561-8 (VDE V 0185-561-8)

Brand: DEHN
Type: HVI 20 M L6M SR1955 FS2500 DSH GFK AL
Part No.: 819247
or equivalent.

Certificates

 

Technical data

Material of supporting tube GRP / Al
Length of supporting tube 1955 mm
Length of air-termination rod 2500 mm
Outside diameter Ø GRP 50 mm
Diameter Ø conductor 20 mm
Colour of conductor black ●
Material of conductor Cu
Equivalent separation distance s (in air) ≤ 75 cm
Minimum order length 6 m
Max. gust wind speed 140 km/h
Standard DIN IEC/TS 62561-8 (VDE V 0185-561-8)

Product 819247 was added to Notepad.

Product 819247 was added to the cart.


back to top