Fangmast mit HVI power Leitung

Für eine maximale freie Länge der gesamten Fangeinrichtung von 8,5 m, Mindestbestelllänge 10 m.
Die Befestigung muss mit drei variablen Haltern (Art.-Nr. 105 345) erfolgen.

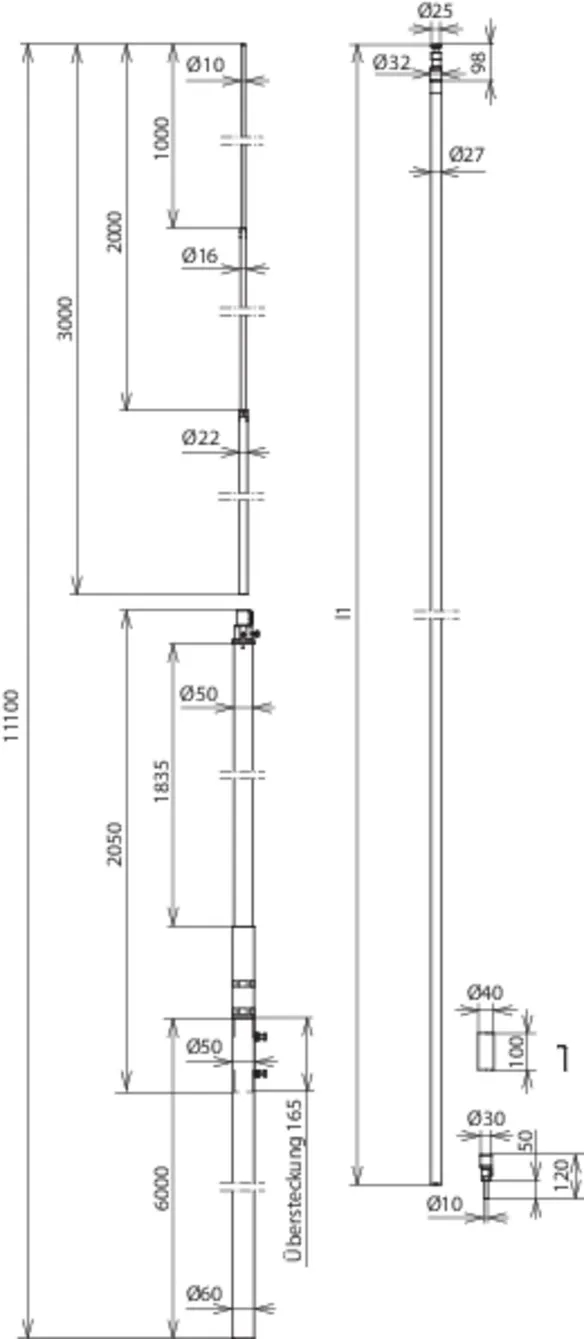
Der teilbare Fangmast besteht aus:
– Fangstange Al Ø22 / 16 / 10 mm, Länge 3000 mm
– Stützrohr GFK/Al Ø50 / 60 mm, Länge 2300 mm (Übersteckung 200 mm)
– Mastrohr St/tZn Ø60 mm, Länge 6000 mm mit Arretierungsschrauben M10 aus NIRO
– HVI power Leitung innen verlegt
– Transportlänge 6000 mm

Ausführung mit 1x HVI power Leitung innenverlegt. Leitungslänge bei Bestellung angeben (0,5 m Schritte).

Maximale Gesamtlänge der HVI power Leitung 11,0 m bei der Schutzklasse I des Blitzschutzsystems.
Maximale Gesamtlänge der HVI power Leitung 15,0 m bei der Schutzklasse II des Blitzschutzsystems.
Maximale Gesamtlänge der HVI power Leitung 22,5 m bei der Schutzklasse III des Blitzschutzsystems.

1 Product

Part No. 819760 FM 60 L11M IP HVIP L10M GFK AL STTZN

GTIN 4013364240391, Customs tariff No. (EU): 85389099, Gross weight: 57.89 kg, PU: 1.00 Stk.

Predecessor

Images

Additional information

Fangmaste mit HVI power Leitung
Fangmaste mit HVI power Leitung
hochspannungsfeste isolierte Ableitung
zum Einhalten des Trennungsabstandes
zu elektrisch leitenden Teilen nach
DIN EN 62305-3 (VDE 0185-305-3)
Speziell für den Einsatz z.B. bei Fermentern oder
Gasspeichern von Biogasanlagen
nach der Schutzklasse II des Blitzschutzsystems.
Die Fangmaste sind nach
Eurocode 1 (DIN EN 1991-1-4 + DIN EN 1991-1-4/NA) dimensioniert.
Die Fangeinrichtung besteht aus:
-Fangstange Al Ø22/16/10 mm Länge 3000 mm
-Stützrohr GFK/Al Ø50/60 mm
-Mastrohr St/tZn Ø60 mm
zuzüglich
3 Stück variablen Halter (Art.-Nr. 105 345)
maximale freie Länge der gesamten Fangeinrichtung von 8,5 m
Ausführung mit 1x HVI power Leitung innenverlegt,
Mindestbestelllänge 10,0 m.
Die weitere erforderliche Leitungslänge der HVI power Leitung
ist separat zu bestellen.
Maximale Gesamtlänge der HVI power Leitung (LPS I) 11,0 m.
Maximale Gesamtlänge der HVI power Leitung (LPS II) 15,0 m.
Maximale Gesamtlänge der HVI power Leitung (LPS III) 22,5 m.
Fangmastlänge gesamt: 11000 mm
Länge Fangstange: 3000 mm
Länge Stützrohr: 2300 mm
Länge Mastrohr: 6000 mm
Durchmesser Ø Leiter: 27 mm
Farbe Leitung: schwarz ●
Werkstoff Leiter: Cu
Mindestbestelllänge: 10 m
Max. Bestelllänge: 35 m
Max. Böenwindgeschwindigkeit: siehe Windlastbroschüre
Normenbezug: DIN IEC/TS 62561-8 (VDE V 0185-561-8)

Fabrikat: DEHN
Typ: FM 60 L11M IP HVIP L10M GFK AL STTZN
Art.-Nr.: 819760
oder gleichwertig.

Certificates

 

Technical data

Fangmastlänge gesamt 11000 mm
Länge Fangstange 3000 mm
Werkstoff Fangstange Al
Länge Stützrohr 2300 mm
Werkstoff Stützrohr GFK / Al
Länge Mastrohr 6000 mm
Werkstoff Mastrohr St/tZn
Durchmesser Ø Leiter 27 mm
Farbe Leitung schwarz ●
Werkstoff Leiter Cu
Mindestbestelllänge 10 m
Max. Bestelllänge 35 m
Geeignet für Rohraußenverlegung Nein
Normenbezug DIN IEC/TS 62561-8 (VDE V 0185-561-8)

Product 819760 was added to Notepad.

Product 819760 was added to the cart.


back to top